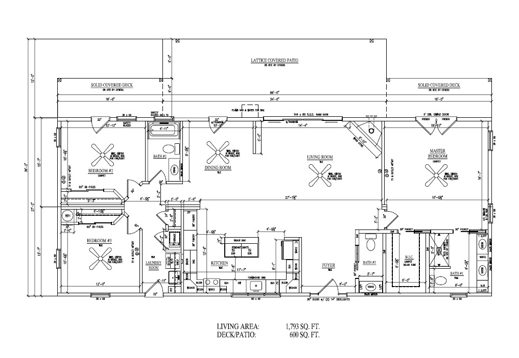
The Menifee Project will be a 1793 sf 3 Bedroom, 3 Bath California modular home and will include 600 sf of deck. Menifee, CA is located in Southern California.
A true “Modular” home is completed up to 80% in a factory and is built to the California Building Code, the same code that applies to site-built homes. Modular homes are always permanently set on a concrete foundation or a special foundation system if the site requires. We build almost any architectural style with modular construction if you allow for shipping considerations and budget constraints. Modular buildings are typically finished in about half the time of site-built construction.
- Menifee Front Rendering
- Menifee Rear Rendering
- Menifee First Floor
- Menifee Front Elevation
- Menifee Rear Elevation
- Menifee Left Elevation
- Menifee Right Elevation










