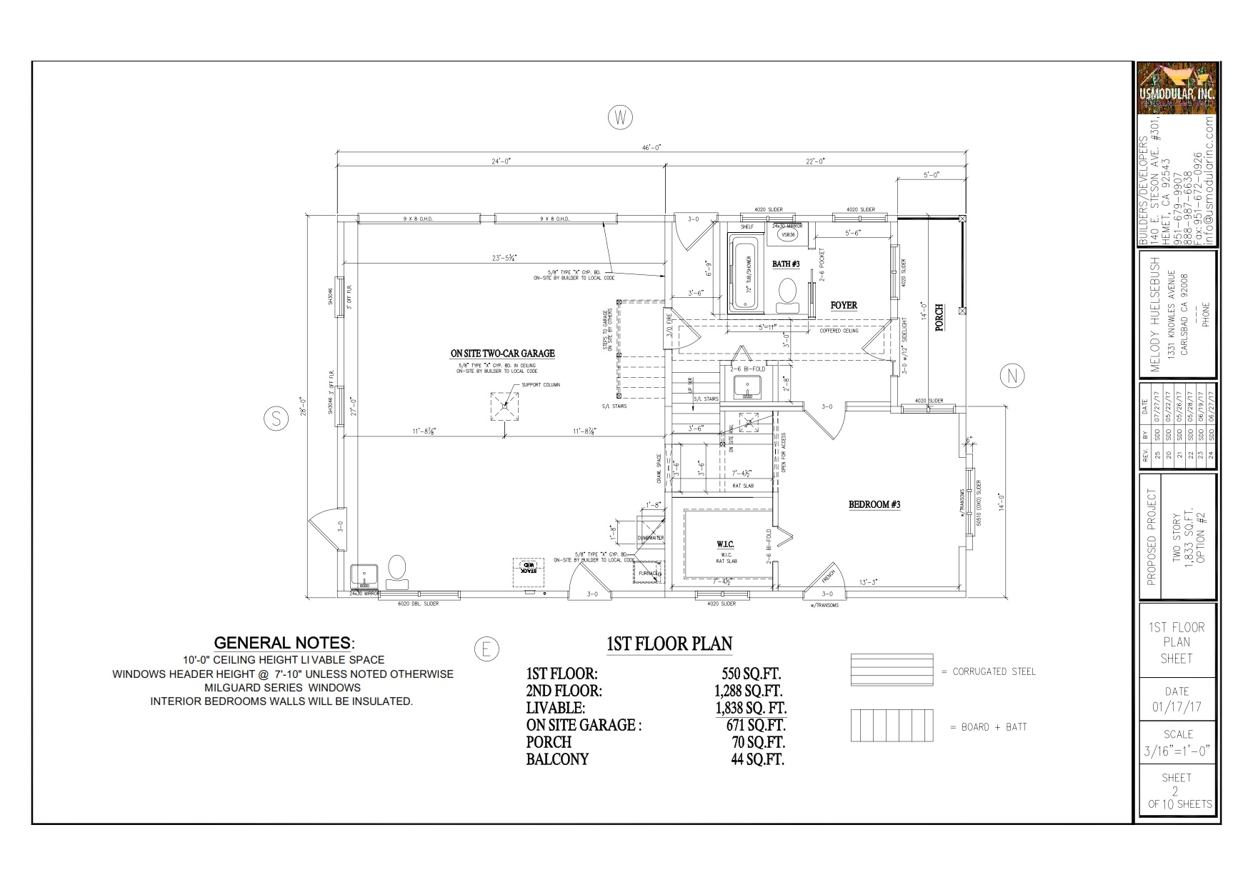
This 1,838 sq ft 2 story modern Orange County, CA craftsman style home will be built with 10” first floor sidewalls and an elevated foundation so the New Homeowner can enjoy ocean views from the second floor living area. The home will have three bedrooms and 2.5 baths and feature a dumbwaiter, an oversize 2 car garage, balcony, corrugated steel siding and cool roof shingles.:
- Orange County, CA modular home
- Orange County, CA
- Orange County, CA
What are Modular Homes?
Modular homes are residences built in a controlled factory environment in sections, or modules, and then transported to the construction site. There, they are installed on permanent foundations and completed by professional installers.
But there’s even more to like about modular homes.
Modular homes can reduce construction time by more than 35 percent, getting you into your new home faster so you can enjoy it longer. Site-built homes can take many weeks to complete, while modular homes are assembled on site and usually finished within a week.
Modular homes offer price savings other approaches cannot. Because most modular construction can be completed in less time than site-built construction, for example, the cost of interim construction financing is significantly reduced or eliminated.
Our role as a leading manufacturer of modular homes requires us to purchase large amounts of quality building material – achieving economies of scale that result in price savings we pass along to you.
Modular homes offer remarkable value. With more than 60 years’ experience, you’ll find our commitment to excellence in every module, nail and carpet fiber and in every one of our floor plans. Our modular homes are professionally engineered and built by skilled craftsmen and continually inspected to ensure they meet precise state and/or local building codes.






