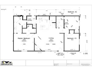
USModular, Inc,the leading modular builder in California, today announced the installation of an accessory dwelling unit (ADU) in San Diego, highlighting a building system that allows the construction of backyard granny flats faster, better, and for less in comparison to site-built homes. This ADU is 1,041 sf,3 bedroom 2 bath and transitioned from a foundation to 95% completed house in just one day.
This ADU was built to help create additional space and housing opportunities for the owner. Recent updates to laws regulating granny flats in San Diego, allow property owners to build Accessory Dwelling Units (ADU) and Junior Accessory Dwelling Units (JADU) on the same lot. Granny flats may now have a maximum building size of up to 1,200 square feet,
One of the many advantages of building your granny flat in San Diego using modular construction is the fact that your granny flat can be typically delivered, set and completed in less than 4 months. This is considerably less time than most onsite granny flats, where weather concerns, small or inconsistent construction crews, back orders and equipment problems are just a few of the reasons for delay. Contact the experts at USModular today for more information on building an ADU in your area.









