USModular, Inc. the leading ADU (accessory dwelling unit) builder in California, today announced the installation of an ADU built using modular construction in Riverside County, CA, highlighting a building system that allows the construction of additional housing on your property faster, better, and for less in comparison to site-built homes. This ADU is 787 sf, 2 bedroom 2 bath and transitioned from a foundation to 95% completed house in just one day. ct is located in Riverside County, CA
This project is in Riverside, California
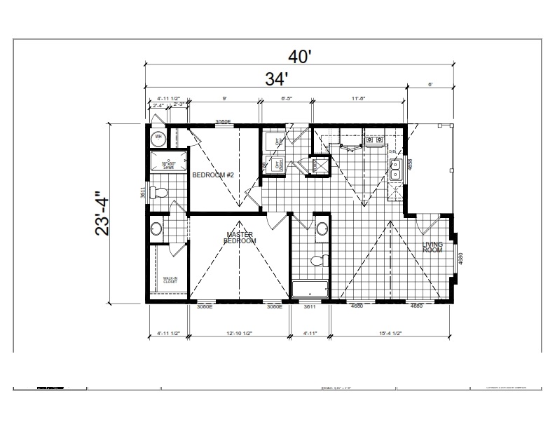
Model: Primrose/CM-8409D
20’X45’ 2Br 2Ba 787Sf
9Ft Flat Ceiling
Rustic Black Architectural Shingles
Full Lap Siding
Low “E” Dual Glaze Windows Throughout
6-Panel Doors
White Glazed Cabinets
2” Fauxwood Blinds
Stainless Steel Appliance Package
Stainless Steel Farm Sink
Brush Nickel Faucets
Granite Countertops Throughout
Wood Window Sills
One of the many advantages of building your ADU in Southern California using modular construction is the fact that your new home can be typically delivered, set and completed in less than 4 months. This is considerably less time than most onsite construction, where weather concerns, small or inconsistent construction crews, back orders and equipment problems are just a few of the reasons for delay. Contact the experts at USModular, Inc. today for more information on building an ADU in your area.



